Цена: €118000

ID: BB2312

Местор.: дом 4 комнатный

До моря: 5км.

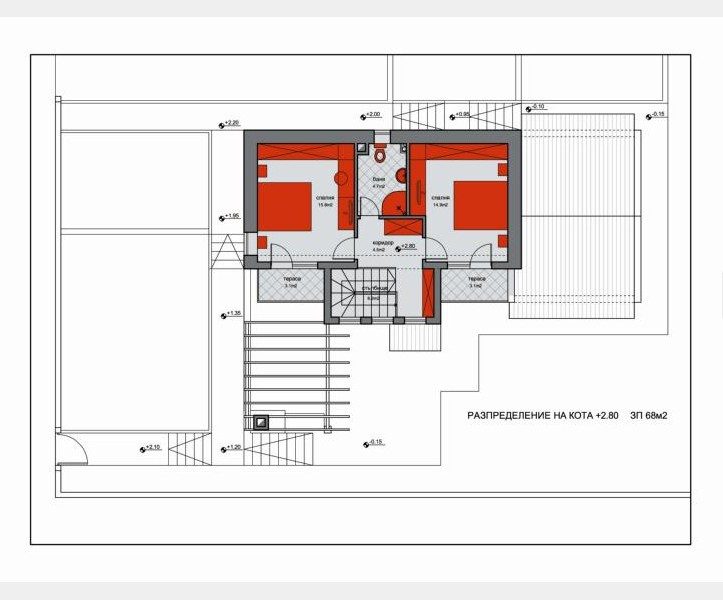
дом 163 кв.м., 3 спальни, 2 ванные, сад 930 кв.м., 5 км. от моря